Gewerbeobjekt Delitzsch - 1.580€ | Angebot:25155262 Gewerbeobjekt Delitzsch - 1.580€ | Angebot:25155262
Gewerbeobjekt Delitzsch - 1.580€ | Angebot:25155262 Gewerbeobjekt Delitzsch - 1.580€ | Angebot:25155262

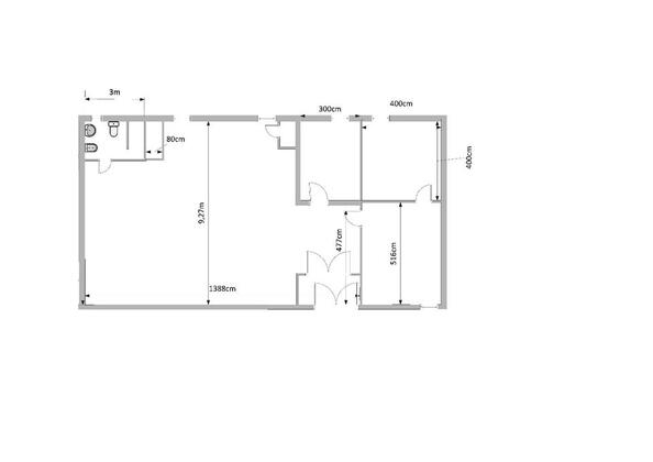
Bürofläche 165m² vielseitig Nutzbar als Laden, Büro oder Showroom

Informationen zur Immobilie:
Ort
04509 Delitzsch
Objektart
Gewerbeobjekt
Größe
ca. 8,50 m²
1.580 €
(zzgl. Nebenkosten)
Kaltmiete
Beschreibung:
Mehr zum Angebot Bürofläche 165m² vielseitig Nutzbar als Laden, Büro oder Showroom:

Büro 165m² - Erstbezug!
vielseitig Nutzbar als Laden, Büro oder Showroom
komplett Saniert

Davon ca. 6m² Bad mit Dusche
Großraumbüro / Ausstellungsfläche ca. 115m²
1. Büro 6m²
2. Büro 20m²
3. Büro 16m²

Erstbezug
Laminatfußboden
Strukturierte Netzwerkverkabelung vorhanden
19" Netzwerkschrank
Für Küchenzeile... mehr erfahren
weitere Gewerbeobjekte
social facebook social youtube social instagram social tiktok

Copyright © 2000 - 2026 | 1A Infosysteme GmbH | Content by: 1A-Anzeigenmarkt.de 17.04.2026